Page 7 - Marix Technology
P. 7

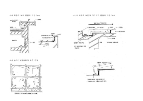
4-8  두껍대  부위  균열에  의한  누수                                                  4-10  배수로  부분의  여러가지  균열에  의한  누수































            4-9  슬라브부동침하에  따른  균열
   2   3   4   5   6   7   8   9   10   11   12