Page 6 - Marix Technology
P. 6

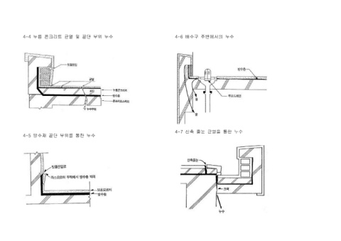
4-4  누름  콘크리트  균열  및  끝단  부위  누수                                           4-6  배수구  주변에서의  누수



























                                                                                       4-7  신축  줄눈  균열을  통한  누수
            4-5  방수재  끝단  부위를  통한  누수
   1   2   3   4   5   6   7   8   9   10   11